エスプライム新大阪Ⅱ 3階
物件写真1/1
ワンルーム / 18㎡ / 保証金:無し
築年月:1994年06月
阪急電鉄千里線/淡路駅【徒歩5分】
大阪府大阪市東淀川区淡路5丁目
イチオシポイント
高い耐久性や断熱・気密性、防音性に優れた鉄筋コンクリート構造です。
高い耐久性や断熱・気密性、防音性に優れた鉄筋コンクリート構造です。
イチオシポイント
高い耐久性や断熱・気密性、防音性に優れた鉄筋コンクリート構造です。
高い耐久性や断熱・気密性、防音性に優れた鉄筋コンクリート構造です。
基本情報
家賃 |
39,500円 | 管理費 |
5,500円 |
|---|---|---|---|
敷金 |
無し | 礼金 |
無し |
保証金 |
無し | 償却 | |
間取り |
ワンルーム | 専有面積 |
18㎡ |
| 建物種別 | マンション | 築年月 | 1994年06月 |
| 方位 | 無し | 所在地 | 大阪府大阪市東淀川区淡路5丁目 |
| 沿線・駅 |
阪急電鉄千里線/淡路駅【徒歩5分】 阪急電鉄千里線/下新庄駅【徒歩11分】 おおさか東線/南吹田駅【徒歩19分】 |
||
家賃 |
39,500円 |
|---|---|
管理費 |
5,500円 |
敷金 |
無し |
礼金 |
無し |
保証金 |
無し |
償却 |
|
間取り |
ワンルーム |
専有面積 |
18㎡ |
建物種別 |
マンション |
築年月 |
1994年06月 |
方位 |
無し |
所在地 |
大阪府大阪市東淀川区淡路5丁目 |
沿線・駅 |
阪急電鉄千里線/淡路駅【徒歩5分】 阪急電鉄千里線/下新庄駅【徒歩11分】 おおさか東線/南吹田駅【徒歩19分】 |
部屋の特徴
インターネット無料
風呂・トイレ別
オートロック
独立洗面台
南向き
システムキッチン
フローリング
2階以上
クローゼット
駐車場
洗浄機能付きトイレ
室内洗濯機設置可
物件詳細情報
| 間取り(詳細) | ワンルーム() | 構造 | 鉄筋コンクリート造 |
|---|---|---|---|
| 物件階層 | 地上5階建・3階部分 | 駐車場 | |
| 現況 | 空予定 | 入居時期 | 入居相談 |
| 保険 | 損害保険加入要 | 取引 | 仲介 |
| 設備 |
建物設備:エレベータ |
||
| 契約期間 | 2年 | 更新料 | 新家賃の1.00ヶ月分 |
| 備考 | 消臭・除菌(契約時) 契約時/13,200円 鍵交換代/22,000円 水道代(月)/月/2,000円 安心入居サポート(月)/月/1,100円 | ||
| お問い合わせ 物件番号 |
262083942-0301 | 総戸数 | 31戸 |
| 建物保守状況 | |||
| 更新日 | 物件更新日 : 2026年04月17日 / 更新予定日 : 2026年05月01日 | ||
| 間取り(詳細) | ワンルーム() |
|---|---|
| 構造 | 鉄筋コンクリート造 |
| 物件階層 | 地上5階建・3階部分 |
| 駐車場 | |
| 現況 | 空予定 |
| 入居時期 | 入居相談 |
| 保険 | 損害保険加入要 |
| 取引 | 仲介 |
| 設備 |
建物設備:エレベータ |
| 総戸数 | 31戸 |
| 契約期間 | 2年 |
| 更新料 | 新家賃の1.00ヶ月分 |
| 備考 | 消臭・除菌(契約時) 契約時/13,200円 鍵交換代/22,000円 水道代(月)/月/2,000円 安心入居サポート(月)/月/1,100円 |
| お問い合わせ 物件番号 |
262083942-0301 |
| 建物保守状況 | |
| 更新日 | 物件更新日:2026年04月17日 / 更新予定日:2026年05月01日 |
周辺施設情報
ソフトバンク淡路駅前まで約510m徒歩で約7分
青谷書店まで約510m徒歩で約7分
大阪王将淡路店まで約310m徒歩で約4分
ファミリーマート阪急淡路駅前店まで約450m徒歩で約6分
イズミヤ淡路店まで約550m徒歩で約7分
大阪市東淀川区役所まで約1270m自転車で約7分
※各種情報と現状に差異がある場合は、現状優先となります
この物件の最寄りの店舗
最寄り駅から探す
最寄駅の沿線から探す
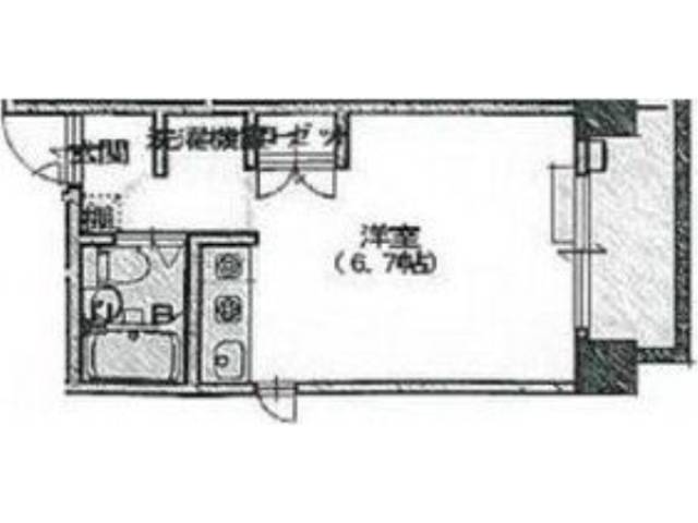
間取り図面
外観写真
家賃
賃貸物件を使用する際の対価のことをいいます。賃貸借契約に基づき物件の所有者に支払うものを指します。
管理費
建物の管理維持をするための費用です。エントランス、エレベーター、共用設備などさまざまな費用があります。また共益費ともいいます。
敷金
基本的に退去時に返還され、賃貸料支払いの担保として、家主に預けておくお金のこと。ただし、家賃滞納や物件に損害があった場合等は敷金から損害分を差し引かれる事に。通常家賃の3~5ヶ月分程度の額に相当します。
礼金
借主から貸主に対して支払われるもので、契約が終了した場合でも借主に返還される事はありません。
保証金
敷金・礼金を折衷した性格のものです。通常、家賃の3〜10ヶ月分相当程度です。敷金と同じく賃貸料支払いの担保として家主に預けておくお金です。
間取り
建築物内部の部屋数や区画などを表記で表したもののことをいいます。リビング(L)、ダイニング(D)、キッチン(K)など様々な表記があります。
専有面積
所有者が所有している建物部分の床面積のことをいいます。計算方法には壁芯と内法とあり、壁芯は壁の厚みの中央線に囲まれた面積を床面積と考えます。内法は厚みを考慮せず壁の内側部分だけを床面積と考えます。