ファミーユ百合 5階
物件写真1/1
3LDK / 67.06㎡ / 保証金:無し
築年月:1994年06月
阪急電鉄千里線/千里山駅【徒歩20分】
大阪府吹田市佐井寺1丁目
イチオシポイント
高い耐久性や断熱・気密性、防音性に優れた鉄筋コンクリート構造です。
高い耐久性や断熱・気密性、防音性に優れた鉄筋コンクリート構造です。
イチオシポイント
高い耐久性や断熱・気密性、防音性に優れた鉄筋コンクリート構造です。
高い耐久性や断熱・気密性、防音性に優れた鉄筋コンクリート構造です。
基本情報
家賃 |
90,000円 | 管理費 |
6,000円 |
|---|---|---|---|
敷金 |
無し | 礼金 |
200,000円 |
保証金 |
無し | 償却 | |
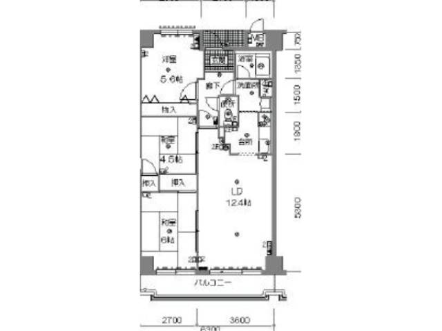
間取り |
3LDK | 専有面積 |
67.06㎡ |
| 建物種別 | マンション | 築年月 | 1994年06月 |
| 方位 | 南 | 所在地 | 大阪府吹田市佐井寺1丁目 |
| 沿線・駅 |
阪急電鉄千里線/千里山駅【徒歩20分】 阪急電鉄千里線/南千里駅【バス「阪急バス吹田市内線」14分「「佐井寺」」下車徒歩3分】 JR東海道本線/吹田駅【バス「阪急バス吹田市内線」10分「「佐井寺」」下車徒歩3分】 |
||
家賃 |
90,000円 |
|---|---|
管理費 |
6,000円 |
敷金 |
無し |
礼金 |
200,000円 |
保証金 |
無し |
償却 |
|
間取り |
3LDK |
専有面積 |
67.06㎡ |
建物種別 |
マンション |
築年月 |
1994年06月 |
方位 |
南 |
所在地 |
大阪府吹田市佐井寺1丁目 |
沿線・駅 |
阪急電鉄千里線/千里山駅【徒歩20分】 阪急電鉄千里線/南千里駅【バス「阪急バス吹田市内線」14分「「佐井寺」」下車徒歩3分】 JR東海道本線/吹田駅【バス「阪急バス吹田市内線」10分「「佐井寺」」下車徒歩3分】 |
部屋の特徴
インターネット無料
風呂・トイレ別
オートロック
独立洗面台
南向き
システムキッチン
フローリング
2階以上
クローゼット
駐車場
洗浄機能付きトイレ
室内洗濯機設置可
物件詳細情報
| 間取り(詳細) | 3LDK(和室6.0×和室4.5×洋室5.6×LDK12.4) | 構造 | 鉄筋コンクリート造 |
|---|---|---|---|
| 物件階層 | 地上5階建・5階部分 | 駐車場 | 15,000円 |
| 現況 | 空室 | 入居時期 | 即入居 |
| 保険 | 損害保険加入要 | 取引 | 仲介 |
| 設備 |
建物設備:エレベータ 室内設備:バストイレ別、洗髪洗面化粧台、TVドアホン、クローゼット、システムキッチン |
||
| 契約期間 | 2年 | 更新料 | 無し |
| 備考 | |||
| お問い合わせ 物件番号 |
301077742-0501 | 総戸数 | -戸 |
| 建物保守状況 | |||
| 更新日 | 物件更新日 : 2026年04月20日 / 更新予定日 : 2026年05月04日 | ||
| 間取り(詳細) | 3LDK(和室6.0×和室4.5×洋室5.6×LDK12.4) |
|---|---|
| 構造 | 鉄筋コンクリート造 |
| 物件階層 | 地上5階建・5階部分 |
| 駐車場 | 15,000円 |
| 現況 | 空室 |
| 入居時期 | 即入居 |
| 保険 | 損害保険加入要 |
| 取引 | 仲介 |
| 設備 |
建物設備:エレベータ 室内設備:バストイレ別、洗髪洗面化粧台、TVドアホン、クローゼット、システムキッチン |
| 総戸数 | -戸 |
| 契約期間 | 2年 |
| 更新料 | 無し |
| 備考 | |
| お問い合わせ 物件番号 |
301077742-0501 |
| 建物保守状況 | |
| 更新日 | 物件更新日:2026年04月20日 / 更新予定日:2026年05月04日 |
周辺施設情報
エネオス千里山SSまで約1840m自転車で約10分
Seria BiVi千里山店まで約1530m自転車で約8分
ローソン 岸辺北3丁目店まで約1610m自転車で約9分
マルヤス 吹田原町店まで約1110m徒歩で約14分
吹田税務署まで約2280m自転車で約12分
医療法人篤友会千里山病院まで約2670m自転車で約14分
※各種情報と現状に差異がある場合は、現状優先となります
この物件の最寄りの店舗
最寄り駅から探す
最寄駅の沿線から探す
間取り図面
外観
リビング・居室
洗面
バス
トイレ
その他室内
眺望
キッチン
玄関
収納
駐車場
エントランス
共有部分
家賃
賃貸物件を使用する際の対価のことをいいます。賃貸借契約に基づき物件の所有者に支払うものを指します。
管理費
建物の管理維持をするための費用です。エントランス、エレベーター、共用設備などさまざまな費用があります。また共益費ともいいます。
敷金
基本的に退去時に返還され、賃貸料支払いの担保として、家主に預けておくお金のこと。ただし、家賃滞納や物件に損害があった場合等は敷金から損害分を差し引かれる事に。通常家賃の3~5ヶ月分程度の額に相当します。
礼金
借主から貸主に対して支払われるもので、契約が終了した場合でも借主に返還される事はありません。
保証金
敷金・礼金を折衷した性格のものです。通常、家賃の3〜10ヶ月分相当程度です。敷金と同じく賃貸料支払いの担保として家主に預けておくお金です。
間取り
建築物内部の部屋数や区画などを表記で表したもののことをいいます。リビング(L)、ダイニング(D)、キッチン(K)など様々な表記があります。
専有面積
所有者が所有している建物部分の床面積のことをいいます。計算方法には壁芯と内法とあり、壁芯は壁の厚みの中央線に囲まれた面積を床面積と考えます。内法は厚みを考慮せず壁の内側部分だけを床面積と考えます。
