賃貸不動産をお探しなら地域密着の賃貸のエリッツへ
企業情報
店舗案内
法人のお客様
English
中文簡体
中文繁体
한국어
日本語
当社はエリッツホールディングス(東証上場)のグループ会社です(証券コード:5533)
(無料)
来店予約
最近見た物件
お気に入り
メニュー
お問い合わせ(無料)
賃貸物件のご相談
メールでお問い合わせ
LINEでお問い合わせ
相談から契約まで来店不要
オンライン相談予約
法人・オーナー様向けお問い合わせ
賃貸物件を探す
マンション・アパート・一軒家
賃貸のエリッツ
まずはお気軽にお問い合わせください
受付時間:10:00~19:00
24時間受付中
法人・オーナー様向けお問合せはこちら
貸店舗・貸事務所・貸オフィス
3件
並び替え
表示単位
築年月:1990年10月
JR東海道本線/東淀川駅【徒歩8分】
大阪府大阪市東淀川区淡路1丁目
物件写真2枚の一覧はこちら
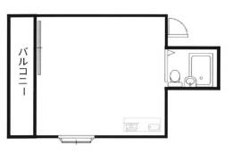
ワンルーム / 16 ㎡ / 保証金 : 無し
更新日:2026/04/13
1LDK / 33 ㎡ / 保証金 : 無し
現在の検索条件
yumaison west
1LDK
築年月:2026年06月
おおさか東線/JR長瀬駅【徒歩5分】
ラリカソールヒヨ
2LDK
築年月:1999年03月
JR琵琶湖線/栗東駅【徒歩5分】
アリエッタ
築年月:2015年12月
JR琵琶湖線/瀬田駅【徒歩20分】
レオパレスプレミール1
1K+ロフト
築年月:2003年03月
近鉄けいはんな線/荒本駅【徒歩6分】
基本条件から検索
プロが物件探しをサポート
相談から契約まで来店不要のオンライン部屋探し
閉じる