賃貸不動産をお探しなら地域密着の賃貸のエリッツへ
企業情報
店舗案内
法人のお客様
English
中文簡体
中文繁体
한국어
日本語
当社はエリッツホールディングス(東証上場)のグループ会社です(証券コード:5533)
(無料)
来店予約
最近見た物件
お気に入り
メニュー
お問い合わせ(無料)
賃貸物件のご相談
メールでお問い合わせ
LINEでお問い合わせ
相談から契約まで来店不要
オンライン相談予約
法人・オーナー様向けお問い合わせ
賃貸物件を探す
マンション・アパート・一軒家
賃貸のエリッツ
まずはお気軽にお問い合わせください
受付時間:10:00~19:00
24時間受付中
法人・オーナー様向けお問合せはこちら
貸店舗・貸事務所・貸オフィス
2件
並び替え
表示単位
築年月:1983年01月
JR湖西線/堅田駅【徒歩10分】
滋賀県大津市今堅田2丁目
物件写真52枚の一覧はこちら
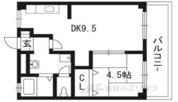
1LDK / 34.56 ㎡ / 保証金 : 無し
更新日:2026/04/16
物件写真46枚の一覧はこちら
現在の検索条件
にしまちハイツ
2DK
築年月:1979年10月
京阪本線/香里園駅【徒歩14分】
コモドカーサ・アヤ1
2LDK
築年月:2003年01月
福知山線/福知山駅【バス18分】京都交通バス/五丁ヶ谷【徒歩13分】
レークハイツ瀬田
1DK
築年月:1981年03月
JR琵琶湖線/石山駅【徒歩9分】
レオパレスシルフィード
ワンルーム
築年月:2010年06月
JR琵琶湖線/大津駅【徒歩10分】
基本条件から検索
プロが物件探しをサポート
相談から契約まで来店不要のオンライン部屋探し
閉じる