賃貸不動産をお探しなら地域密着の賃貸のエリッツへ
企業情報
店舗案内
法人のお客様
English
中文簡体
中文繁体
한국어
日本語
当社はエリッツホールディングス(東証上場)のグループ会社です(証券コード:5533)
(無料)
来店予約
最近見た物件
お気に入り
メニュー
お問い合わせ(無料)
賃貸物件のご相談
メールでお問い合わせ
LINEでお問い合わせ
相談から契約まで来店不要
オンライン相談予約
法人・オーナー様向けお問い合わせ
賃貸物件を探す
マンション・アパート・一軒家
賃貸のエリッツ
まずはお気軽にお問い合わせください
受付時間:10:00~19:00
24時間受付中
法人・オーナー様向けお問合せはこちら
貸店舗・貸事務所・貸オフィス
2件
並び替え
表示単位
築年月:1988年09月
阪急電鉄京都線/長岡天神駅【徒歩25分】
京都府長岡京市井ノ内下印田
物件写真45枚の一覧はこちら
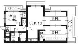
3LDK / 54 ㎡ / 保証金 : 無し
更新日:2026/04/13
物件写真60枚の一覧はこちら
2LDK / 58 ㎡ / 保証金 : 無し
現在の検索条件
グレイスビル
2K
築年月:1984年12月
阪急電鉄京都線/長岡天神駅【徒歩4分】
パルデンス長岡京
築年月:1985年01月
阪急電鉄京都線/長岡天神駅【徒歩5分】
ハイツ山茶花
3DK
築年月:1986年08月
JR京都線/長岡京駅【徒歩5分】
コスモス
1LDK
築年月:2006年03月
阪急電鉄京都線/長岡天神駅【バス10分】市バス/下久我【徒歩7分】
基本条件から検索
プロが物件探しをサポート
相談から契約まで来店不要のオンライン部屋探し
閉じる