事業用賃貸をお探しなら地域密着の賃貸のエリッツへ
企業情報
店舗案内
法人のお客様
English
中文簡体
中文繁体
한국어
日本語
当社はエリッツホールディングス(東証上場)のグループ会社です(証券コード:5533)
(無料)
来店予約
最近見た物件
お気に入り
メニュー
お問い合わせ(無料)
テナント物件のご相談はこちら
メールでお問い合わせ
オーナー様・物件探し向けお問い合わせ
テナント物件を探す
貸店舗・貸事務所・貸オフィス
賃貸のエリッツ テナント専門店
まずはお気軽にお問い合わせください
受付時間:10:00~19:00
24時間受付中
マンション・アパート・一軒家
1件
並び替え
表示単位
築年月:2021年12月
京都地下鉄烏丸線/京都駅【徒歩4分】
京都市下京区東塩小路
物件写真4枚の一覧はこちら
保証金 : 23,849,760円
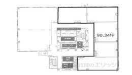
90.34坪 / 298.65 ㎡ / 店舗
更新日:2026/04/28
現在の検索条件
高橋第十二ビル
広さ(坪数):40.51坪
築年月:1971年03月
京都地下鉄烏丸線/五条駅【徒歩3分】
テナント専門店
テナントのプロが物件探しをサポート
基本条件から検索
プロが物件探しをサポート
LINEでお問い合わせ
相談から契約まで来店不要
オンライン相談予約
相談から契約まで来店不要のオンライン部屋探し
閉じる