事業用賃貸をお探しなら地域密着の賃貸のエリッツへ
企業情報
店舗案内
法人のお客様
English
中文簡体
中文繁体
한국어
日本語
当社はエリッツホールディングス(東証上場)のグループ会社です(証券コード:5533)
(無料)
来店予約
最近見た物件
お気に入り
メニュー
お問い合わせ(無料)
テナント物件のご相談はこちら
メールでお問い合わせ
オーナー様・物件探し向けお問い合わせ
テナント物件を探す
貸店舗・貸事務所・貸オフィス
賃貸のエリッツ テナント専門店
まずはお気軽にお問い合わせください
受付時間:10:00~19:00
24時間受付中
マンション・アパート・一軒家
20件
並び替え
表示単位
築年月:1999年09月
京阪本線/伏見桃山駅【徒歩21分】
京都市伏見区下鳥羽澱女町
物件写真2枚の一覧はこちら
保証金 : 無し
126.65坪 / 418.7 ㎡ / 事務所
更新日:2026/05/23
築年月:1983年03月
京阪本線/藤森駅【徒歩7分】
京都市伏見区深草西浦町7丁目
物件写真28枚の一覧はこちら
17.46坪 / 57.75 ㎡ / 事務所
築年月:1973年10月
京阪本線/伏見桃山駅【徒歩7分】
京都市伏見区西大手町
保証金 : 675,000円
17.02坪 / 56.27 ㎡ / 店舗
保証金 : 1,100,000円
21.83坪 / 72.19 ㎡ / 店舗
物件写真22枚の一覧はこちら
保証金 : 1,400,000円
56.83坪 / 187.87 ㎡ / 事務所
築年月:2006年09月
JR奈良線/JR藤森駅【徒歩12分】
京都市伏見区深草東伊達町
物件写真3枚の一覧はこちら
42.99坪 / 142.14 ㎡ / 事務所
更新日:2026/05/22
築年月:1993年11月
京都地下鉄烏丸線/竹田駅【徒歩14分】
京都市伏見区中島北ノ口町
物件写真7枚の一覧はこちら
保証金 : 200,000円
18.54坪 / 39.55 ㎡ / 事務所
築年月:1988年02月
京都地下鉄烏丸線/竹田駅【徒歩2分】
京都市伏見区竹田段川原町
保証金 : 1,600,000円
20.57坪 / 68 ㎡ / 事務所
19.96坪 / 66 ㎡ / 事務所
19.36坪 / 64 ㎡ / 事務所
保証金 : 3,000,000円
30.72坪 / 101.58 ㎡ / 店舗
築年月:2026年03月
京阪本線/中書島駅【徒歩7分】
京都市伏見区京橋町
物件写真0枚
保証金 : 1,000,000円
17.2坪 / 56.88 ㎡ / 店舗
更新日:2026/05/21
17.2坪 / 56.88 ㎡ / 事務所
築年月:1999年10月
京阪本線/伏見稲荷駅【徒歩6分】
京都市伏見区深草下川原町
物件写真12枚の一覧はこちら
保証金 : 486,000円
13.5坪 / 44.55 ㎡ / 事務所
保証金 : 496,800円
13.8坪 / 45.54 ㎡ / 店舗
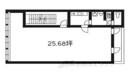
築年月:1963年06月
京阪本線/墨染駅【徒歩1分】
京都市伏見区墨染町
物件写真20枚の一覧はこちら
25.68坪 / 84.75 ㎡ / 事務所
築年月:2003年03月
近鉄京都線/伏見駅【徒歩23分】
京都市伏見区中島秋ノ山町
物件写真9枚の一覧はこちら
11.96坪 / 39.54 ㎡ / 事務所
更新日:2026/05/18
物件写真44枚の一覧はこちら
16.9坪 / 55.9 ㎡ / 事務所
築年月:1989年08月
京阪本線/中書島駅【バス7分】|市バス/伏見警察署前【徒歩1分】
京都市伏見区南寝小屋町
14.02坪 / 46.37 ㎡ / 事務所
築年月:1984年08月
近鉄京都線/桃山御陵前駅【徒歩10分】
12.97坪 / 42.88 ㎡ / 事務所
物件写真6枚の一覧はこちら
58.06坪 / 191.96 ㎡ / 事務所
築年月:1977年10月
京阪本線/中書島駅【バス10分】|バス/横大路【徒歩5分】
京都市伏見区横大路東裏町
物件写真11枚の一覧はこちら
47.49坪 / 157 ㎡ / 事務所
築年月:2000年05月
京都地下鉄烏丸線/竹田駅【徒歩15分】
京都市伏見区竹田田中宮町
保証金 : 210,000円
7.19坪 / 23.8 ㎡ / 事務所
更新日:2026/05/17
物件写真16枚の一覧はこちら
7.51坪 / 24.85 ㎡ / 店舗
築年月:1990年09月
近鉄京都線/上鳥羽口駅【徒歩4分】
京都市伏見区竹田向代町
保証金 : 743,400円
15.6坪 / 51.6 ㎡ / 事務所
築年月:1985年07月
近鉄京都線/竹田駅【徒歩1分】
京都市伏見区竹田西桶ノ井町
物件写真33枚の一覧はこちら
保証金 : 2,400,000円
23.67坪 / 78.12 ㎡ / 事務所
現在の検索条件
基本条件から検索
用途
賃料
保証金・敷金・礼金
広さ
坪単価(税別計算)
最寄り駅からの徒歩時間
状態
飲食
設備
階数
引渡し
行政区
駅徒歩
こだわり条件
テナント専門店
テナントのプロが物件探しをサポート
プロが物件探しをサポート
LINEでお問い合わせ
相談から契約まで来店不要
オンライン相談予約
相談から契約まで来店不要のオンライン部屋探し
閉じる